
Chalupa na Liptove na predaj
- Domy
- 80 m2
- Liptovská Porúbka
Realitná kancelária RESIDENCE prináša lukratívnu ponuku pre tých, ktorí majú záujem o investíciu v exotickej krajne akou je Zanzibar.
Chcete rýchlo a bezpečne zhodnotiť svoj investičný kapitál, alebo túžite po vlastnej rekreačnej nehnuteľnosti v teplej exotickej krajine? Ak áno Zanzibar môže byť tou pravou voľbou!
Ponúkame vám na predaj cenovo veľmi zaujímavé vilky len 200m od brehu Indického oceánu. Vily sa nachádzajú v novovybudovanom uzavretom rezorte o rozlohe 10 000 m². Pozemok je rozdelený na 10 parciel po cca 500 m² každá. Presná poloha a orientácia vašej vily na pozemku závisí len od vašich požiadaviek a podmienok prostredia. Štandardná veľkosť pozemku v Palm Village je 20×25 metrov.
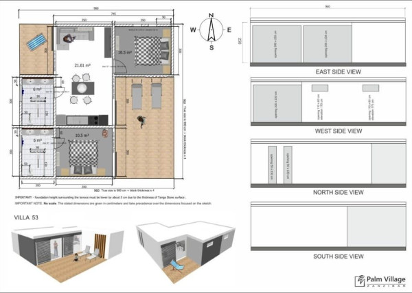
K dispozícii sú dve verzie stavieb v prevedení BASIC:
Villa 37 s rozlohou obytnej plochy 37 m² a zastavanou plochou cca 65m² pozostáva z dvoch izieb: 11 a 20 m², kúpeľni 6 m², a dvoch vonkajších terás: 10,5 m² a 6 m².
Villa 53 s obytnou plochou 53 m² a zastavanou plochou cca 90m² pozostáva z troch izieb o rozlohe 10, 10 a 21 m², 2 kúpeľni 6 m² každá, a dvoch vonkajších terás: 21 m² a 6 m².
V prípade, že nepotrebujete mať dve kúpeľne, vieme druhú kúpeľňu upraviť ako šatník, sklad atď. podľa požiadavky.
Vily sú murované, osadené na základovej betónovej doske s pultovou, betónovou, izolovanou strechou.
V prípade záujmu je možné doinštalovať klimatizačne jednotky do izieb. Cena jednej klimatizácie je cca 500,- € + montáž.
Základná výbava v úrovni BASIC zahrňuje:
veľkoplošné izolačné zasklenia o rozmeroch: 300 x 230 cm v systéme Multi Sliding – Aluplast.
sklopné, otváravé izolačne okna v spálni a kúpeľni, dlažba v izbách, dlažba a obklad v kúpeľni,
dláždené prírodným kameňom Tanga Stone vonkajšie terasy, kúpeľňu zariadenú sanitou (sprchový kút, umývadlo, WC), bojler na ohrev TÚ
CENY VRÁTANE 500 m² POZEMKU
Villa 37 Basic – 68,000,- EUR
Villa 53 Basic – 98.000,- EUR
Platobné podmienky
Rezervačná zmluva – úhrada vo výške 10% z kúpnej ceny vily pri podpise Rezervačnej zmluvy oboma zmluvnými stranami
1. splátka vo výške 35% z kúpnej ceny vily oproti podpisu Zmluvy o dielo oboma zmluvnými stranami
2. splátka vo výške 35% z kúpnej ceny vily po dokončení hrubej stavby.
3. splátka vo výške 20% z kúpnej ceny vily predstavuje celkové finančné vysporiadanie diela na základe vykonaných prác a dodávok po dokončení a odovzdaní stavby Objednávateľovi.
Nehnuteľnosť môžete voľne využívať a obhospodarovať podľa svojich požiadaviek.
Lokalita
Projekt Palm Village sa nachádza v strede ostrova na východnej strane na južnom kraji zátoky Pongwe. Prístup je priamo z hlavnej komunikácie. Medzinárodné letisko a prístav je vo vzdialenosti 45 km. Letecké spojenie z Viedne, Bratislavy, Prahy a hlavných európskych miest. Priemerné ročné teploty na Zanzibare sú 24 – 32°C. Teplota vody na pobreží v mesiacoch december – apríl 30 – 34°C. Turistická sezóna, alebo inak high season je tu až 10 mesiacov v roku!
V rámci predaja vily kupujúci dostane nadobúdací doklad a certifikát o vlastníctve nehnuteľnosti.
Po vyplatení plnej čiastky Vám neodkladne odovzdáme kľúče a doklady o vlastníctve. Tanzánijské a zanzibarské zákony povoľujú 100% vlastníctvo nehnuteľnosti aj pre cudzincov.
Pre viac informácií kontaktujte nášho realitného makléra Boris Barborík, 0903 308 042
Interné ID: | 80111002759 |
---|---|
Ulica: | Zanzibar |
Druh: | Domy |
Typ: | Predaj |
Typ domu: | Vila |
Iné: |
Inšpirujte sa